Incredible Collections Of Awning Window Section Concept
Awning Window Specifications H Hirschmann Ltd Architectural Windows Doors via hhirschmannltd.com

Hopper Awning Windows Northwest Door Sash Awning Windows via www.pinterest.com

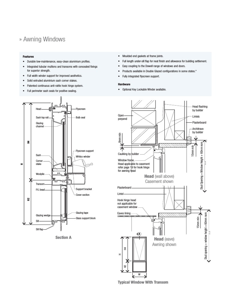
Awning Window Section Detail via id.scribd.com

Bay Side Push Out Casement Window Friday We Received Delivery Of Our Windows And via www.pinterest.com

Awning Window Hinges Chinook Glass Screen Ltd via www.chinookglass.com

Drawing L Windows Pty Ltd via www.lwindows.com.au

2f 3500 Awning Windows Standard Out Swing Awning Window System via test.2folddoors.com
Incredible Collections Of Awning Window Section Concept






Incredible Collections Of Awning Window Section Concept
0 Response to "Incredible Collections Of Awning Window Section Concept"
Post a Comment